Terra-Ép Magyarország Kft.

Tolna Emelet 3/B

3 szoba 65,91 m²
25,531 millió Ft
Időpontot kérek
Ár
25,531 millió Ft
Alapterület
65,91 m²
Erkély
16,59 m²
Szobák
3

Ingatlan adatai

Ingatlan típusa
újépítésű
Építés éve
2025
Emelet
I. emelet
Épület szintjei
2
Lift
nincs
Akadálymentes
nem

Parkolás
utcán
Fürdő & WC
egyben
Fűtés
padlófűtés
Hűtés
split klíma
Tájolás
délkelet
Erkély mérete
16,59 m²
Kertkapcsolat
igen
Tetőtér
nem tetőtéri

Leírás

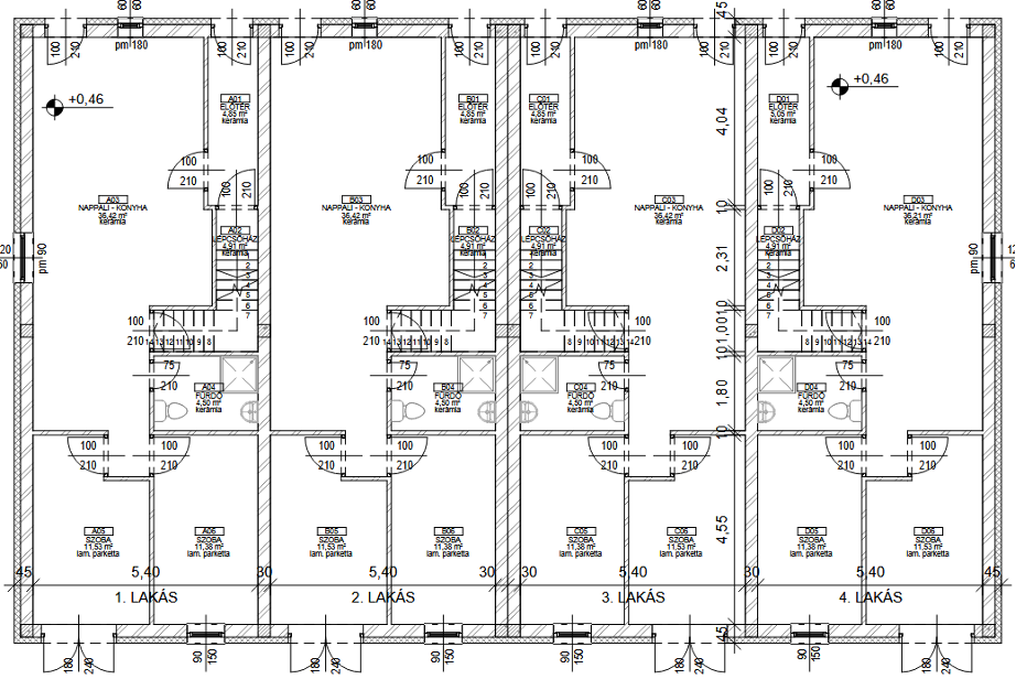
Tolna – Mözs részén, az Ybl Miklós utcában épülő társasházi projektünkben eladó az alábbi emeleti, nappali + 2 hálószobás lakás.

A lakás elrendezése a mellékelt alaprajz szerint alakul.

Modern kornak megfelelően a lakás fűtéséről kondenzációs kazán gondoskodik, padlófűtéssel. Minden lakás egyedi mérőkkel lesz felszerelve, így a rezsiköltsége fogyasztás után fizetendő majd.

A feltüntetett ár emelet szerkezetkész ár.

A 8 lakásból álló társasház építése folyamatban van, a lakások azonnal birtokbavehetőek.

További kérdések vagy részletes műszaki tartalom miatt, nyugodtan keressen elérhetőségeimen!

Emelet 3/B lakás

Alaprajz

1 kép
Műszaki leírás
Muszaki-tartalom-Tolna-Ybl-Miklos-utca.pdf
Letöltés

Kapcsolatfelvétel

Üzenet küldése

Elérhetőség, bejelentkezés

Írjon vagy hívjon – a megfelelő kolléga veszi fel Önnel a kapcsolatot.

Mit várhat a beküldés után?
  • Megkeresését munkanapokon néhány órán belül feldolgozzuk.
  • A megfelelő kolléga veszi fel Önnel a kapcsolatot.
  • Igény esetén online vagy személyes konzultációt egyeztetünk.