Terra-Ép Magyarország Kft.

Deszk, Új osztás

Deszk 4 háló 140 m² hasznos Átadva
  • Átadás éve 2023
  • Hasznos alapterület 140 m²
  • Telekméret 810 m²
  • Hálók 4
Átadás: 2023
Kapcsolat
Átadás éve
2023
Hasznos alapterület
140 m²
Telekméret
810 m²
Hálók
4

Ház adatai

Szintek száma
Hálószobák
4
Fürdőszobák
2
Beépített alapterület
Kert
Terasz
Parkolás
Garázs
Helyek száma: 2
Fűtés
Hűtés
Energiaosztály
Homlokzat / anyag
Tájolás

Leírás

Deszken, az új osztásban épülő, csendes, barátságos környezetben, egy szintes családi ház talált gazdára.

A településen óvoda, iskola és számos vásárlási lehetőség megtalálható, a környék biztonságos lehetőséget nyújt gyerekes szülők számára.

A ház tervezésekor törekedtünk a családosok igényeire szabni a tereket és a funkciókat miközben előkészítettük a jövő technológiai újdonságaira.

Fő célunk volt, hogy igényes, esztétikus, modern és szerethető otthont adjunk át a leendő tulajdonosának.

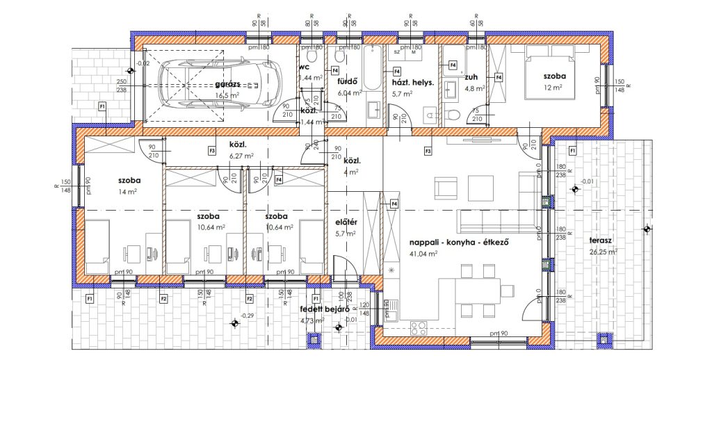
Terv / helyszínrajz

1 elem
Műszaki leírás
Deszk-BS10-szerkezetkesz-muszaki-tartalom.pdf
Letöltés
Kérdése van a projektről?
Írjon nekünk vagy kérjen további dokumentációt.
Komfort / extrák
Napelem