Terra-Ép Magyarország Kft.
Eladva

I. emelet 4/B

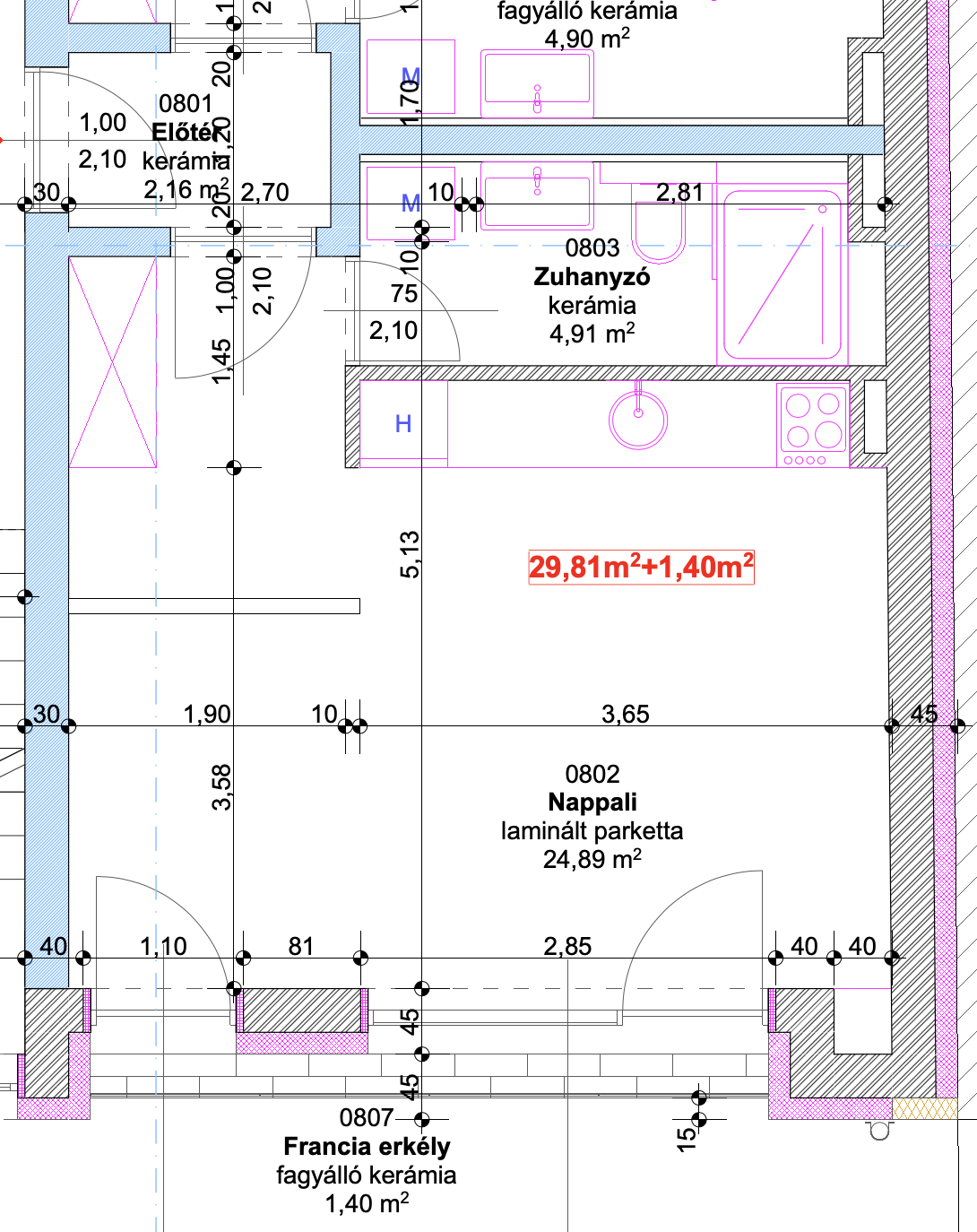
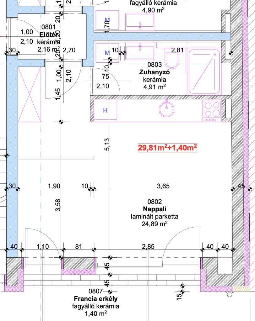
Bevezető ár 1 szoba 29,35 m²
42,714 millió Ft
Időpontot kérek
Ár
42,714 millió Ft
Alapterület
29,35 m²
Erkély
1,40 m²
Szobák
1

Ingatlan adatai

Ingatlan típusa
újépítésű
Építés éve
2026
Emelet
I. emelet
Épület szintjei
4
Lift
van
Akadálymentes
nem

Parkolás
udvari beálló, vásárolható
Vételár: 4 500 000 Ft
Fürdő & WC
egyben
Fűtés
hőszivattyú
Hűtés
fan-coil
Tájolás
kelet
Erkély mérete
1,40 m²
Kertkapcsolat
nem
Tetőtér
nem tetőtéri

Leírás

Szeged-Felsőváros frekventált részén, a József Attila sugárúton induló társasházi projektünkben eladó az alábbi második emeleti, erkélyes garzon lakás.

A lakás elrendezése a mellékelt alaprajz szerint alakul.

Modern kornak megfelelően a teljes épület fűtéséről, valamint hűtéséről levegő-víz hőszivattyú gondoskodik, padlófűtéssel, illetve fan-coil hűtéssel. Minden lakás egyedi mérőkkel lesz felszerelve, szobánként vezérlehető termosztáttal, így a rezsiköltsége fogyasztás után fizetendő majd.

A feltüntetett ár bruttó kulcsrakész ár.

A 14 lakásból, 5 garázsból és 7 beállóból álló társasház építése 2026 márciusában indul, átadása pedig 2027 szeptemberében történik meg.

További kérdések vagy részletes műszaki tartalom miatt, nyugodtan keressen elérhetőségeimen!

Első emelet 4/B lakás

Alaprajz

1 kép
Műszaki leírás
Reszletes-muszaki-tartalom-Jozsef-Attila-sugarut-48.pdf
Letöltés

Kapcsolatfelvétel

Üzenet küldése

Elérhetőség, bejelentkezés

Írjon vagy hívjon – a megfelelő kolléga veszi fel Önnel a kapcsolatot.

Mit várhat a beküldés után?
  • Megkeresését munkanapokon néhány órán belül feldolgozzuk.
  • A megfelelő kolléga veszi fel Önnel a kapcsolatot.
  • Igény esetén online vagy személyes konzultációt egyeztetünk.